- property Status: For Sale
- Location: San Dimas CA 91773
- Price: $3,200,000
- MLS ID: CV24068778
- BEDROOMS:
- BATHS:
More Information
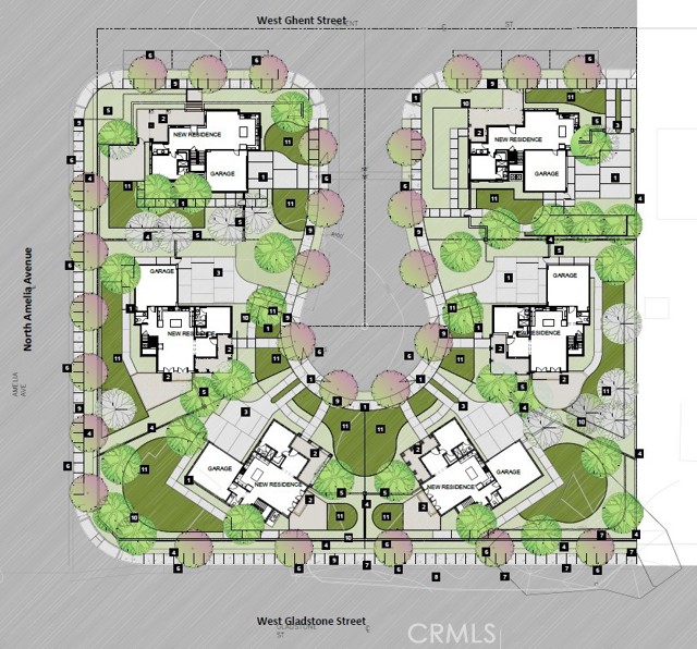
Unlock the potential of this exceptional vacant land opportunity nestled in the vibrant heart of San Dimas. Property is in a prime location at the corner of N Amelia Ave & W Gladstone St, this expansive 1.61-acre lot presents an enticing prospect for builders and investors alike. The true value of this property lies in its development potential, with land entitlements already secured and a tentative tract map for subdivision approved. This parcel offers the drafted plans for the creation of six detached single-family homes. Each residence provides a spacious living environment, ranging from 2383 to 2597 square feet, providing ample room for comfortable modern living. Encompassing a total of over 70,000 square feet, this sizable lot presents endless possibilities. *Each lot has the capability of building a ADU adding another additional maximum of 1,000 livable square per ADU.* The most recent plans have the proposed livable square footage as 19,754. Located a mere 0.2 miles away, Arma J. Shull Elementary School, boasts a stellar 10 rating and provides an excellent educational option for families. The bustling Glendora Marketplace is also within easy reach, offering a plethora of shopping, dining, and entertainment options just 0.8 miles away. A small single-family house currently occupies a portion of the land, offering 2 bedrooms and 1 bathroom with approximately 750 square feet. Additionally, a liquor store building comprising approximately 1400 square feet stands on the lot.










